Extravagante Bauhaus-Architektur
					
						Dieses Refugium im modernen Bauhaus-Stil überzeugt durch eine schlichte, aufs Wesentliche reduzierte Formensprache. Zur gelungenen Lifestyle-Architektur mit klar strukturiertem, kubischem Baukörper gesellt sich ein durchdachtes Raumkonzept auf 201 Quadratmetern Wohnfläche.
					
				
				
					
					Die großzügig bemessene Wohnfläche dieses Baus gewährleistet ein hohes Maß an Komfort. Hier ist genug Platz für eine große Familie, als auch für Besuch oder für eine Pflegekraft, falls dies einmal erforderlich werden sollte. Das Haus bietet einen durchdachten Entwurf, der sich wechselnden Anforderungen ideal anpasst. Im Erdgeschoss dient der kombinierte Wohn-, Ess- und Kochbereich als kommunikativer Mittelpunkt des Familienlebens. Wer Rückzugsorte vom lebhaften Alltag sucht, wird in den Räumen der oberen Etage oder im Hobbykeller fündig. Der auskragende Kubus des Obergeschosses schiebt sich schützend über einen Bereich der teilumlaufenden Terrasse. So entsteht eine harmonische Verbindung der Innen- und Außenbereiche.
			 
		
		
			
			
				
				
					
					
					
					
						
						
							Erdgeschoss
							![]() 
						 
						
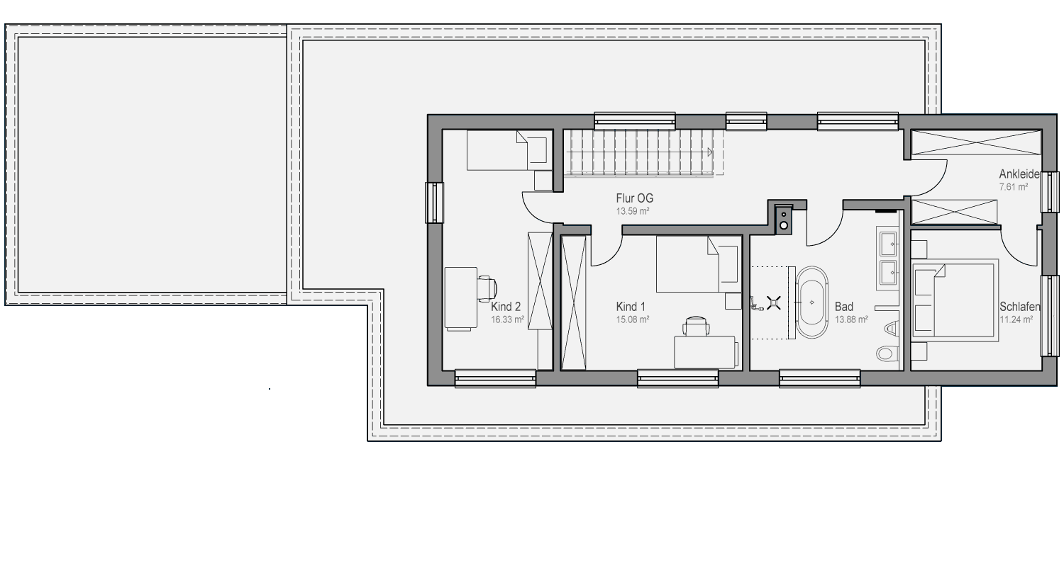
							Obergeschoss
							![]() 
						 
						
							Keller
							![]() 
						 
					 
				 
			 
		
		
 
		
			
			
				
				
	194 m²
	 
	Großzügiges Einfamilienhaus im Bauhaus-Stil
	Eine Terrasse zum Verlieben: Mit direktem Zugang zum Wohnbereich, großzügiger Dimensionierung und überdachter Outdoor-Küche ist diese Terrasse nicht nur die ideale Voraussetzung für laue Sommerabende - sie ist auch das Herzstück dieses Entwurfs im Bauhaus-Stil.
	zur Planung ➤
 
	201 m²
	 
	Extravagante Bauhaus-Architektur
	Dieses Refugium im modernen Bauhaus-Stil überzeugt durch eine schlichte, aufs Wesentliche reduzierte Formensprache. Zur gelungenen Lifestyle-Architektur mit klar strukturiertem, kubischem Baukörper gesellt sich ein durchdachtes Raumkonzept auf 201 Quadratmetern Wohnfläche.
	zur Planung ➤
 
			 
		
		
		
			
				
				
					
					
						
						
						
						
						
					
					"Qualitativ hochwertiger Bauträger, sehr gute Planung und Betreuung während des Baus, Probleme werden schnell und pragmatisch gelöst. Wir können MKM als Bauträger nur empfehlen."
						Jutta Eicher
					
				 
				
					
					
						
						
						
						
						
					
					"Gute Beratung, Entwurf und Bau individuell nach unseren Wünschen, sehr gute Kommunikation, es hat alles wunderbar geklappt!"
						Jürgen Frank
					
				 
				
					
					
						
						
						
						
						
					
					"Wir haben in den Schlossgärten in Bissingen mit MKM gebaut. Wir sind sehr zufrieden und würden jederzeit wieder bei MKM bauen lassen.
Ich fasse es in vier Worte: Kompetenz, Genauigkeit, Zuverlässigkeit, Freundlichkeit"
						K. Geißler
					
				 
				
					
					
						
						
						
						
						
					
					"Fachlich, menschlich volle Punktzahl. Verlässliche Abwicklung, gute Kommunikation vor, während und nach der Bauphase. Vielen Dank!
Viele Stunden der Vorplanung ohne Abrechnung, Details wurden besprochen und waren beim Mitbewerb nicht in dem Umfang enthalten."
						Toni Hartl
					
				 
				
					
					
						
						
						
						
						
					
					"Toller Bauträger, der meiner Meinung nach durch kundenorientiertes Handeln und Qualität absolut überzeugt. Mega tolles Team. Probleme werden zugunsten des Kunden gelöst und nicht zugunsten der Firma. Dort bekommt man wirklich noch das Gefühl, sein Traumhaus zu bauen und am Ende ist es das auch. Ich würde, ohne zu überlegen, sofort wieder mit MKM bauen."
						Maria Trenkler
					
				 
				
					
					
						
						
						
						
						
					
					"Wir wohnen nun seit zwei Monaten in unserer neuen MKM - Eigentums - Wohnung, haben uns sehr gut eingelebt und bereuen den Kauf keinesfalls. Die Planung sowie die Betreuung während der Bauzeit ist super gelaufen. Die Arbeit der einzelnen Handwerker ist eine Meisterleistung. Alle Handwerker waren sehr freundlich und sind auf alle unserer Wünsche eingegangen. Sogar die Wand, zur Vergrößerung der Küche und des Essbereichs konnte versetzt werden. Das Gästezimmer wurde etwas kleiner, das erst dadurch die richtige Größe erhielt."
						Walter Eller
					
				 
				
					
					
						
						
						
						
						
					
					"Waren sehr zufrieden und würden jederzeit wieder mit MKM bauen!"
						Stefan Gentner
					
				 
				
					
					
						
						
						
						
						
					
					"Sehr professionelle und freundliche Art der Abwicklung, arbeitet mit guten Handwerkern aus der Umgebung zusammen."
						Corinna Adams
					
				 
				
					
					
						
						
						
						
						
					
					"Super Bauträger, vom Angebot mit H. Künast bis zur Ausführung mit H. Lang alles perfekt! Weiter so!!!"
						Wolfgang Gentner
					
				 
				
					
					
						
						
						
						
						
					
					"Hohe Zuverlässigkeit - gute Qualität – seriöser Preis!"
						Winfried Seitz
					
				 
				
					
					
						
						
						
						
						
					
					"Wir waren vollkommen zufrieden mit dem Hausbau vor gut jetzt 17 Jahren. Kleinere Mängel wurden alle beseitigt."
						H. B.
					
				 
				
					
					
						
						
						
						
						
					
					"Unser Haus war 2004 bezugsfertig. Von Anfang bis Ende und darüber hinaus waren wir mit MKM bestens zufrieden.
Familie König, Gundelfingen"
						Daniel König
					
				 
				
					
					
						
						
						
						
						
					
					"Die Zusammenarbeit mit MKM war von Anfang an super, jederzeit wieder."
						K. T.
					
				 
				
					
					
						
						
						
						
						
					
					"Wir waren sehr zufrieden, super kompetent und auch die Arbeiten wurden tipptopp ausgeführt. Wir würden wieder mit MKM bauen."
						Manu
					
				 
				
					
					
						
						
						
						
						
					
					"Mit MKM zu Bauen war die Beste Entscheidung! Vom Aushub bis zum Einzug lief alles reibungslos und genau nach Plan. Super freundliches und engagiertes Team, jederzeit erreichbar. Beste Qualität bei jedem Gewerk. Fazit: super Bauträger!"
						Andrea Haffner
					
				 
				
					
					
						
						
						
						
						
					
					"Unser Hausbau mit MKM war ein voller Erfolg! Wir und die Baustelle wurden stets optimal beraten und betreut und fühlen uns nun seit mehr als 10 Jahren sehr wohl in einem Eigenheim von MKM."
						Jutta Wimmer
					
				 
				
					
					
						
						
						
						
						
					
					"Ich war mit MKM Wohnbau vollstens zufrieden!"
						Holger Gugg
					
				 
				
					
					
						
						
						
						
						
					
					"Wir haben unser Eigenheim mit MKM gebaut und nicht bereut. Alle sind super freundlich und immer für uns da gewesen. Preis-Leistung passt auf jeden Fall - lest das Kleingedruckte in der Baubeschreibung, da ist bei vielen der Standard noch im Mittelalter und dann - wen wundert es - folgen zusätzlich hohe Kosten. Noch ein extra dickes Lob an unseren Bauleiter Herr Lang! Die Zusammenarbeit war immer ausgezeichnet."
						Anita Schauer
					
				 
				
					
					
						
						
						
						
						
					
					"Wir haben 2017/18 mit MKM gebaut. Wir waren mehr als zufrieden. Die architektonische Umsetzung unserer Vorstellungen sowie deren bautechnische Umsetzung waren sehr gut. MKM ist sehr gut organisiert und die Handwerkerleistungen werden perfekt koordiniert und überwacht. Wir haben während der Bauzeit im Ausland gelebt und mussten uns deshalb voll auf MKM verlassen. Trotz dieser Umstände lief alles nach Plan (bauseitig sowie terminlich). Wir empfehlen MKM deshalb sehr gerne weiter."
						Roland Buehrle
					
				 
				
					
					
						
						
						
						
						
					
					"Ich bewohne seit Januar eine wunderschöne, neu gebaute Eigentumswohnung in einem Mehrfamilienhaus der Firma MKM. Die Bauphase verlief reibungslos.
Die Ausstattung ist modern und qualitativ hochwertig. Meine Anliegen, Fragen und Wünsche wurden von allen Mitarbeitern stets ernst genommen und zuverlässig bearbeitet. Ich hatte jederzeit, sowohl kompetente als auch freundliche Ansprechpartner zur Seite. Ich bin sehr zufrieden und kann die Firma MKM nur weiterempfehlen."
						Wilma Heiß
					
				 
				
					
					
						
						
						
						
						
					
					"Zusammenarbeit mit der Fa. MKM war problemlos. Die Arbeiten wurden
zur vollsten Zufriedenheit erledigt. MKM kann man guten Gewissens weiter empfehlen."
						H Klement
					
				 
				
					
					
						
						
						
						
						
					
					"Vor mittlerweile 20 Jahren mit MKM gebaut und bis heute nicht bereut. Kompetente, kundenorientierte Realisierung unseres Projekts und das mit rundum-sorglos Gefühl."
						Paul Lindt
					
				 
				
					
					
						
						
						
						
						
					
					"Was im Fernsehen über diverse Bauträger berichtet wird, wird von MKM grundlegend wiederlegt! Den Abriß vom Altbestand haben wir in Eigenleistung gemacht. Trotzdem stand uns bei Fragen jederzeit jemand zur Verfügung! Während dem Bau wurde immer alles abgestimmt und auch umgesetzt. Es gab keinerlei ungeplanten Verzögerungen oder Überraschungen! Alle Handwerker waren super freundlich und vorallem fleißig und genau. Die Nachsorge ist auch nach 12 Jahren immer noch gegeben! Von der Planung über die Durchführung bis zur Nachsorge läuft alles Hand in Hand, freundlich und zuverlässig! Wer ein kompetentes Team sucht ist hier sehr gut aufgehoben!"
						Stefanie König
					
				 
				
					
					
						
						
						
						
						
					
					"Wir wohnen jetzt schon seit über einem Jahr in unserem neuen Heim. Wir können nur Gutes über den Hausbau mit MKM berichten. Das MKM-Team haben wir immer als äußerst kompetenten Partner erlebt. Den meisten Kontakt hatten wir natürlich mit unserem Bauleiter Hr. Lang, der alles im Griff hatte und alle Probleme, die es zwangsläufig bei so einem Projekt gibt, ausräumte. Aber auch mit Hr. Künast und Hr. Müller und dem restliche Team hat alles toll funktioniert. Auch die Firmen, mit denen MKM bei unserem Haus zusammen gearbeitet hat, haben einen guten Eindruck hinterlassen. Besonders können wir hier die Firma Fliesen Schaller herausheben. Wir können MKM nur empfehlen, wenn man vor der Überlegung steht, ein Haus bauen zu wollen. Vielen Dank nochmal ans Team!"
						Günter Sing
					
				 
				
					
					
						
						
						
						
						
					
					"Waren sehr zufrieden und würden jederzeit wieder mit MKM bauen!"
						Susanne Heimbach
					
				 
				
					
					
						
						
						
						
						
					
					"Die Beratung, die Betreuung während des Baus und die Qualität der erbrachten Leistung waren prima (Bauzeit 2006-2007). Auch das Preis-Leistungs-Verhältnis stimmte. Ich würde jederzeit wieder in ein MKM-Haus ziehen."
						Petra Plaum
					
				 
				
					
					
						
						
						
						
						
					
					"Solides und transparent agierendes Wohnbauunternehmen. Bauen geht ja nie ohne Ärge und Stress. Aber MKM macht, was möglich ist, dass einem keine grauen Haare wachsen."
						Arne Schäffler
					
				 
				
					
					
						
						
						
						
						
					
					"MKM hat uns ein Zuhause geschaffen, in dem wir uns rundum wohl fühlen und das von Anfang (Planungsphase) bis zum Stand Heute (Leben) nur größte Freude bereitet. Wir haben uns in jeder Phase besten aufgehoben und betreut gefühlt und unsere Entscheidung, mit MKM zu bauen, zu keinem Zeitpunkt bereut. Von uns wird MKM wärmstens weiterempfohlen..."
						Eva Poch
					
				 
				
					
					
						
						
						
						
						
					
					"Wir leben seit 2013 in einem Mehrfamilienhaus von MKM. Qualität und perfekte Ansprechpartner bei MKM, haben uns eine Traumimmobilie ermöglicht, in der wir uns zuhause fühlen."
						Peter Klopfer
					
				 
				
					
					
						
						
						
						
						
					
					"Wir haben unser Haus mit MKM gebaut und waren voll zufrieden, vor allem mit dem guten Service. Hier findet man immer ein offenes Ohr für alle Belange."
						Thomas Haller
					
				 
				
					
					
						
						
						
						
						
					
					"Würden immer wieder mit diesem tollen Team unser Haus planen und bauen."
						Ingrid Stets
					
				 
				
					
					
						
						
						
						
						
					
					"Leider kann ich nur fünf Sterne vergeben. Während des gesamten Bauprojekts wurden wir äußerst wertschätzend, kompetent und kundenorientiert beraten und begleitet! Ein Top-Partner rund ums schlüsselfertige Bauen! Absolut empfehlenswert!"
						Josef Pfeiffer
					
				 
				
					
					
						
						
						
						
						
					
					"In Zeiten, in denen man kurzfristig kaum noch einen Handwerker bekommt, geschweige denn in der richtigen Abfolge beim Hausbau, braucht man einen Partner, der zum einen die besten Dienstleister vereint und auf der anderen Seite auch alles aus einer Hand plant und darüber hinaus auch die Durchführung überwacht. Machen die alles! Können die alles! Kenne keine Besseren!"
						Matthias Pausewang
					
				 
				
					
					
						
						
						
						
						
					
					"Vor, während und nach der Bauphase wird man hier stets professionell und freundlich betreut. Qualitativ sehr hochwertige Ausführung aller Gewerke."
						Stefan Naumann
					
				 
				
					
					
						
						
						
						
						
					
					"Super Zusammenarbeit (Bau 2006) - Bis auf Heizungsbauer alles einwandfrei. - Flexibilität von der Planung bis zum Einzug. - "Nachsorge" immer noch gegeben."
						Roman Eberhard
					
				 
				
					
					
						
						
						
						
						
					
					"Sehr verlässlicher Bauträger der zu seinem Wort steht und in guter Qualität abliefert. Hatte in meinem Fall anfangs immer wieder Probleme mit der Heizungsanlage (hatte offenbar ein "Montagsmodell" der Firma Vissmann erwischt, welches immer wieder mit Störung stehen geblieben ist). Nachdem die Probleme trotz zahlreicher Reparaturversuche innerhalb der Garantiezeit einfach nicht aufhören wollten, hat MKM (über zwei Jahre nach der Bauabnahme) noch dafür gesorgt, dass mir Vissmann das „Montagsmodell“ kostenlos austauscht. Soviel Service bekommt man heut zu Tage wirklich selten. Deshalb fünf Sterne mit Zusatz *."
						Stefan Burkhart
					
				 
				
					
					
						
						
						
						
						
					
					"Wir wohnen nun schon 17 Jahre in unserem MKM-Traumhaus und wir fühlen uns nach wie vor sehr wohl. Mit der Leistung und Betreuung durch MKM-Wohnbau während und auch nach der Bauphase waren wir sehr zufrieden.  Wer sorglos zu seinem Traumhaus kommen will, geht zu MKM."
						Wolfgang Gröschl
					
				 
				
					
					
						
						
						
						
						
					
					"Wir arbeiten mit der Firma MKM schon seit vielen Jahren zusammen und waren immer sehr zufrieden. Kompetene Durchführung der Bauprojekte, ehrliche und gute Beratung sowie gute Preis-Leistung. Wer eine Top Qualität und einen super Service sucht, ist hier an der richtigen Adresse.
Wir sind sehr zufrieden und können die Firma MKM nur weiterempfehlen."
						David Friedel
					
				 
				
					
					
						
						
						
						
						
					
					"Ich habe schon zwei Objekte mit MKM gebaut und beides Mal zu 100% zufrieden. Die Bauleitung durch H. Lang und Betreuung durch H. Künast ist perfekt. Vielen Dank!!!"
						Dr. Sebastian Kirchner
					
				 
				
					
					
						
						
						
						
						
					
					"Wir würden jederzeit wieder mit MKM Wohnbau unser Eigenheim bauen. Von Beginn bis zur Abnahme hat alles super funktioniert."
						Wolfgang Schreitmüller
					
				 
				
					
					
						
						
						
						
						
					
					"Wir sind top zufrieden und können MKM absolut empfehlen!  Selbst als wir nach der Fertigstellung unseres Hauses ein Anliegen hatten war MKM zur Stelle. Ein super Service! Vielen Dank!"
						Martina Sperl
					
				 
				
					
					
						
						
						
						
						
					
					"Wir haben im Jahr 2011 schlüsselfertig mit der Firma MKM Wohnbau gebaut und waren rundum zufrieden. Alles verlief reibungslos und gab es doch mal ein Problem wurde schnell darauf reagiert und immer eine sehr gute Lösung gefunden."
						Christian zerle
					
				 
				
					
					
						
						
						
						
						
					
					"Guter und verlässlicher Partner beim Hausbau."
						Stefan Goerlich
					
				 
				
					
					
						
						
						
						
						
					
					"Würden wir nochmals bauen - immer wieder mit MKM. Vom ersten Treffen bis zum Einzug - freundlich und kompetent. Hier ist wirklich jeder bestens aufgehoben."
						Ingo Meier
					
				 
				
					
					
						
						
						
						
						
					
					"Sind mit unserem Haus super zufrieden. Danke MKM"
						Christian Berchtenbreiter
					
				 
				
					
					
						
						
						
						
						
					
					"Seriös. Nachhaltig. Kundenorientiert.
Sollten wir nochmal bauen, dann wieder mit MKM!"
						Helmut