186 m² Wohnfläche
2 Geschosse
Walmdach
Klassische Stadtvilla mit Walmdach von MKM Traumhäuser

Klassische Stadtvilla mit Walmdach

Quadratisch, praktisch, ästhetisch – die zeitlose Architektur dieser Stadtvilla setzt auf eine ausgeglichene Optik. Das aparte Erscheinungsbild wird durch ein Walmdach ergänzt. So erhält der Bau eine nostalgische Note, die bei der Fassadengestaltung vertieft wird.

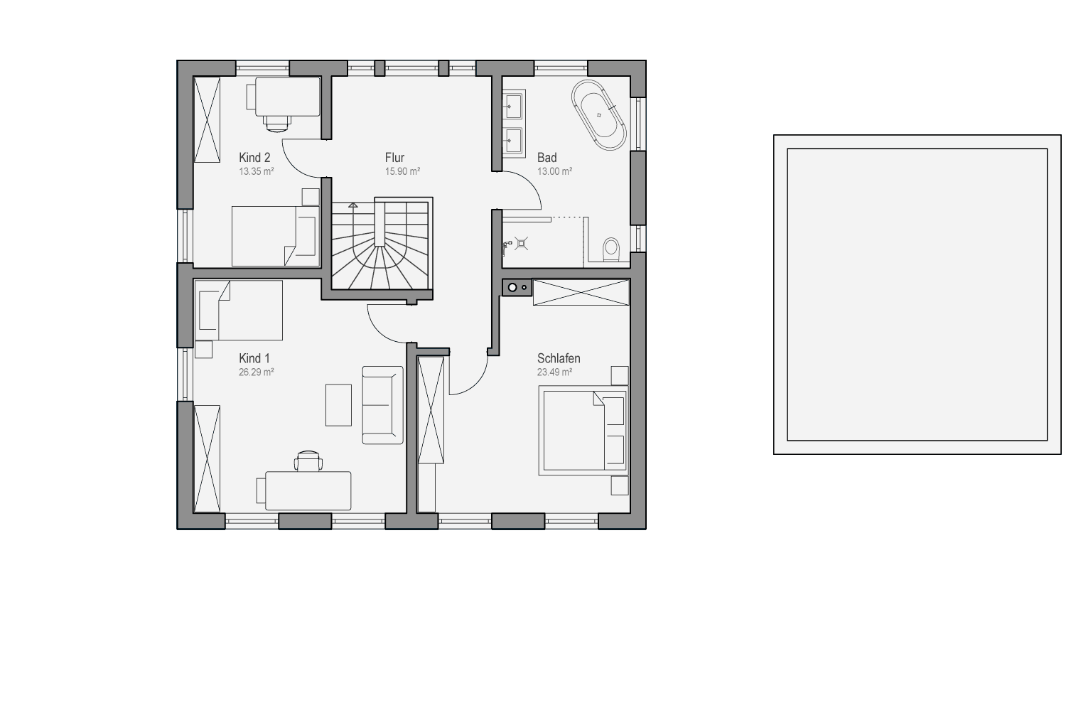
Von außen präsentiert sich die moderne, zweigeschossige Villa mit einem kontrastreichen Farbenspiel in Weiß und Grau. Zahlreiche Sprossenfenster setzen Akzente und unterstreichen die klassische Form des Baukörpers. Viel natürliches Licht strömt in diesem Haus in jeden Winkel. Gleichzeitig gestattet die Wahl der Verglasung wunderbare Blicke in die liebevoll gestaltete Gartenoase. Die Küche ist ein abgeschlossener Raum, während der Wohn- und Essbereich ineinander übergehen. Ein Arbeitszimmer sowie eine Gäste-Toilette finden auf dieser Ebene ebenfalls Platz. Darüber reihen sich im Obergeschoss drei Schlafräume und ein großes Wannenbad. Auch ein Keller ist vorhanden. Hier bleibt ausreichend Platz für Vorratshaltung, Stauraum sowie eine Waschküche.

Klassische Stadtvilla mit Walmdach 1Klassische Stadtvilla mit Walmdach 2Klassische Stadtvilla mit Walmdach 3Klassische Stadtvilla mit Walmdach 4Klassische Stadtvilla mit Walmdach 5
Erdgeschoss
Obergeschoss
Keller

Ähnliche Planungen

198 m²

Bungalow - ebenerdig, barrierefrei, praktisch

Viel Licht und Freiraum gepaart mit einem cleveren Grundriss. Bungalows können so individuell sein, wie andere Häuser auch. Die klare Linienführung dieses Entwurfs geht eine perfekte Symbiose mit den hohen Glastüren ein.

zur Planung ➤
148 m²

Stadtvilla mit modernen Stilelementen

Gradlinig, schnörkellos und funktional gehalten – diese Stadtvilla setzt auf moderne Stilelemente. Vom Keller bis zum Obergeschoss spielt der Bau die Stärken einer raffinierten Planung aus: Hier wird jeder Quadratmeter Wohnfläche ausgenutzt.

zur Planung ➤
166 m²

Stadtvilla im klassischen Stil

Diese Stadtvilla im Toskana-Stil bietet hohe Wohnqualität auch auf kleineren Grundstücken. Der kompakte Baukörper sorgt für großzügigen Wohnraum auf zwei Vollgeschossen und lässt sich auch im Alter noch gut bewohnen.

zur Planung ➤
"Leider kann ich nur fünf Sterne vergeben. Während des gesamten Bauprojekts wurden wir äußerst wertschätzend, kompetent und kundenorientiert beraten und begleitet! Ein Top-Partner rund ums schlüsselfertige Bauen! Absolut empfehlenswert!" Josef Pfeiffer
"Wir haben unser Haus mit MKM gebaut und waren voll zufrieden, vor allem mit dem guten Service. Hier findet man immer ein offenes Ohr für alle Belange." Thomas Haller
"Wir arbeiten mit der Firma MKM schon seit vielen Jahren zusammen und waren immer sehr zufrieden. Kompetene Durchführung der Bauprojekte, ehrliche und gute Beratung sowie gute Preis-Leistung. Wer eine Top Qualität und einen super Service sucht, ist hier an der richtigen Adresse. Wir sind sehr zufrieden und können die Firma MKM nur weiterempfehlen." David Friedel
"Wir haben unser Eigenheim mit MKM gebaut und nicht bereut. Alle sind super freundlich und immer für uns da gewesen. Preis-Leistung passt auf jeden Fall - lest das Kleingedruckte in der Baubeschreibung, da ist bei vielen der Standard noch im Mittelalter und dann - wen wundert es - folgen zusätzlich hohe Kosten. Noch ein extra dickes Lob an unseren Bauleiter Herr Lang! Die Zusammenarbeit war immer ausgezeichnet." Anita Schauer
"Sehr professionelle und freundliche Art der Abwicklung, arbeitet mit guten Handwerkern aus der Umgebung zusammen." Corinna Adams
"Wir leben seit 2013 in einem Mehrfamilienhaus von MKM. Qualität und perfekte Ansprechpartner bei MKM, haben uns eine Traumimmobilie ermöglicht, in der wir uns zuhause fühlen." Peter Klopfer
"Wir haben in den Schlossgärten in Bissingen mit MKM gebaut. Wir sind sehr zufrieden und würden jederzeit wieder bei MKM bauen lassen. Ich fasse es in vier Worte: Kompetenz, Genauigkeit, Zuverlässigkeit, Freundlichkeit" K. Geißler
"Vor mittlerweile 20 Jahren mit MKM gebaut und bis heute nicht bereut. Kompetente, kundenorientierte Realisierung unseres Projekts und das mit rundum-sorglos Gefühl." Paul Lindt
"Waren sehr zufrieden und würden jederzeit wieder mit MKM bauen!" Stefan Gentner
"Wir wohnen nun schon 17 Jahre in unserem MKM-Traumhaus und wir fühlen uns nach wie vor sehr wohl. Mit der Leistung und Betreuung durch MKM-Wohnbau während und auch nach der Bauphase waren wir sehr zufrieden. Wer sorglos zu seinem Traumhaus kommen will, geht zu MKM." Wolfgang Gröschl
"Wir würden jederzeit wieder mit MKM Wohnbau unser Eigenheim bauen. Von Beginn bis zur Abnahme hat alles super funktioniert." Wolfgang Schreitmüller
"Seriös. Nachhaltig. Kundenorientiert. Sollten wir nochmal bauen, dann wieder mit MKM!" Helmut
"Sehr verlässlicher Bauträger der zu seinem Wort steht und in guter Qualität abliefert. Hatte in meinem Fall anfangs immer wieder Probleme mit der Heizungsanlage (hatte offenbar ein "Montagsmodell" der Firma Vissmann erwischt, welches immer wieder mit Störung stehen geblieben ist). Nachdem die Probleme trotz zahlreicher Reparaturversuche innerhalb der Garantiezeit einfach nicht aufhören wollten, hat MKM (über zwei Jahre nach der Bauabnahme) noch dafür gesorgt, dass mir Vissmann das „Montagsmodell“ kostenlos austauscht. Soviel Service bekommt man heut zu Tage wirklich selten. Deshalb fünf Sterne mit Zusatz *." Stefan Burkhart
"Vor, während und nach der Bauphase wird man hier stets professionell und freundlich betreut. Qualitativ sehr hochwertige Ausführung aller Gewerke." Stefan Naumann
"Toller Bauträger, der meiner Meinung nach durch kundenorientiertes Handeln und Qualität absolut überzeugt. Mega tolles Team. Probleme werden zugunsten des Kunden gelöst und nicht zugunsten der Firma. Dort bekommt man wirklich noch das Gefühl, sein Traumhaus zu bauen und am Ende ist es das auch. Ich würde, ohne zu überlegen, sofort wieder mit MKM bauen." Maria Trenkler
"Super Zusammenarbeit (Bau 2006) - Bis auf Heizungsbauer alles einwandfrei. - Flexibilität von der Planung bis zum Einzug. - "Nachsorge" immer noch gegeben." Roman Eberhard
"Mit MKM zu Bauen war die Beste Entscheidung! Vom Aushub bis zum Einzug lief alles reibungslos und genau nach Plan. Super freundliches und engagiertes Team, jederzeit erreichbar. Beste Qualität bei jedem Gewerk. Fazit: super Bauträger!" Andrea Haffner
"Wir waren vollkommen zufrieden mit dem Hausbau vor gut jetzt 17 Jahren. Kleinere Mängel wurden alle beseitigt." H. B.
"Gute Beratung, Entwurf und Bau individuell nach unseren Wünschen, sehr gute Kommunikation, es hat alles wunderbar geklappt!" Jürgen Frank
"In Zeiten, in denen man kurzfristig kaum noch einen Handwerker bekommt, geschweige denn in der richtigen Abfolge beim Hausbau, braucht man einen Partner, der zum einen die besten Dienstleister vereint und auf der anderen Seite auch alles aus einer Hand plant und darüber hinaus auch die Durchführung überwacht. Machen die alles! Können die alles! Kenne keine Besseren!" Matthias Pausewang
"Qualitativ hochwertiger Bauträger, sehr gute Planung und Betreuung während des Baus, Probleme werden schnell und pragmatisch gelöst. Wir können MKM als Bauträger nur empfehlen." Jutta Eicher
"Was im Fernsehen über diverse Bauträger berichtet wird, wird von MKM grundlegend wiederlegt! Den Abriß vom Altbestand haben wir in Eigenleistung gemacht. Trotzdem stand uns bei Fragen jederzeit jemand zur Verfügung! Während dem Bau wurde immer alles abgestimmt und auch umgesetzt. Es gab keinerlei ungeplanten Verzögerungen oder Überraschungen! Alle Handwerker waren super freundlich und vorallem fleißig und genau. Die Nachsorge ist auch nach 12 Jahren immer noch gegeben! Von der Planung über die Durchführung bis zur Nachsorge läuft alles Hand in Hand, freundlich und zuverlässig! Wer ein kompetentes Team sucht ist hier sehr gut aufgehoben!" Stefanie König
"Wir sind top zufrieden und können MKM absolut empfehlen! Selbst als wir nach der Fertigstellung unseres Hauses ein Anliegen hatten war MKM zur Stelle. Ein super Service! Vielen Dank!" Martina Sperl
"Wir haben im Jahr 2011 schlüsselfertig mit der Firma MKM Wohnbau gebaut und waren rundum zufrieden. Alles verlief reibungslos und gab es doch mal ein Problem wurde schnell darauf reagiert und immer eine sehr gute Lösung gefunden." Christian zerle
"Ich bewohne seit Januar eine wunderschöne, neu gebaute Eigentumswohnung in einem Mehrfamilienhaus der Firma MKM. Die Bauphase verlief reibungslos. Die Ausstattung ist modern und qualitativ hochwertig. Meine Anliegen, Fragen und Wünsche wurden von allen Mitarbeitern stets ernst genommen und zuverlässig bearbeitet. Ich hatte jederzeit, sowohl kompetente als auch freundliche Ansprechpartner zur Seite. Ich bin sehr zufrieden und kann die Firma MKM nur weiterempfehlen." Wilma Heiß
"Zusammenarbeit mit der Fa. MKM war problemlos. Die Arbeiten wurden zur vollsten Zufriedenheit erledigt. MKM kann man guten Gewissens weiter empfehlen." H Klement
"Wir haben 2017/18 mit MKM gebaut. Wir waren mehr als zufrieden. Die architektonische Umsetzung unserer Vorstellungen sowie deren bautechnische Umsetzung waren sehr gut. MKM ist sehr gut organisiert und die Handwerkerleistungen werden perfekt koordiniert und überwacht. Wir haben während der Bauzeit im Ausland gelebt und mussten uns deshalb voll auf MKM verlassen. Trotz dieser Umstände lief alles nach Plan (bauseitig sowie terminlich). Wir empfehlen MKM deshalb sehr gerne weiter." Roland Buehrle
"Wir wohnen jetzt schon seit über einem Jahr in unserem neuen Heim. Wir können nur Gutes über den Hausbau mit MKM berichten. Das MKM-Team haben wir immer als äußerst kompetenten Partner erlebt. Den meisten Kontakt hatten wir natürlich mit unserem Bauleiter Hr. Lang, der alles im Griff hatte und alle Probleme, die es zwangsläufig bei so einem Projekt gibt, ausräumte. Aber auch mit Hr. Künast und Hr. Müller und dem restliche Team hat alles toll funktioniert. Auch die Firmen, mit denen MKM bei unserem Haus zusammen gearbeitet hat, haben einen guten Eindruck hinterlassen. Besonders können wir hier die Firma Fliesen Schaller herausheben. Wir können MKM nur empfehlen, wenn man vor der Überlegung steht, ein Haus bauen zu wollen. Vielen Dank nochmal ans Team!" Günter Sing
"Super Bauträger, vom Angebot mit H. Künast bis zur Ausführung mit H. Lang alles perfekt! Weiter so!!!" Wolfgang Gentner
"Die Beratung, die Betreuung während des Baus und die Qualität der erbrachten Leistung waren prima (Bauzeit 2006-2007). Auch das Preis-Leistungs-Verhältnis stimmte. Ich würde jederzeit wieder in ein MKM-Haus ziehen." Petra Plaum
"Unser Hausbau mit MKM war ein voller Erfolg! Wir und die Baustelle wurden stets optimal beraten und betreut und fühlen uns nun seit mehr als 10 Jahren sehr wohl in einem Eigenheim von MKM." Jutta Wimmer
"Wir waren sehr zufrieden, super kompetent und auch die Arbeiten wurden tipptopp ausgeführt. Wir würden wieder mit MKM bauen." Manu
"Guter und verlässlicher Partner beim Hausbau." Stefan Goerlich
"Waren sehr zufrieden und würden jederzeit wieder mit MKM bauen!" Susanne Heimbach
"MKM hat uns ein Zuhause geschaffen, in dem wir uns rundum wohl fühlen und das von Anfang (Planungsphase) bis zum Stand Heute (Leben) nur größte Freude bereitet. Wir haben uns in jeder Phase besten aufgehoben und betreut gefühlt und unsere Entscheidung, mit MKM zu bauen, zu keinem Zeitpunkt bereut. Von uns wird MKM wärmstens weiterempfohlen..." Eva Poch
"Ich war mit MKM Wohnbau vollstens zufrieden!" Holger Gugg
"Würden immer wieder mit diesem tollen Team unser Haus planen und bauen." Ingrid Stets
"Fachlich, menschlich volle Punktzahl. Verlässliche Abwicklung, gute Kommunikation vor, während und nach der Bauphase. Vielen Dank! Viele Stunden der Vorplanung ohne Abrechnung, Details wurden besprochen und waren beim Mitbewerb nicht in dem Umfang enthalten." Toni Hartl
"Sind mit unserem Haus super zufrieden. Danke MKM" Christian Berchtenbreiter
"Unser Haus war 2004 bezugsfertig. Von Anfang bis Ende und darüber hinaus waren wir mit MKM bestens zufrieden. Familie König, Gundelfingen" Daniel König
"Hohe Zuverlässigkeit - gute Qualität – seriöser Preis!" Winfried Seitz
"Würden wir nochmals bauen - immer wieder mit MKM. Vom ersten Treffen bis zum Einzug - freundlich und kompetent. Hier ist wirklich jeder bestens aufgehoben." Ingo Meier
"Solides und transparent agierendes Wohnbauunternehmen. Bauen geht ja nie ohne Ärge und Stress. Aber MKM macht, was möglich ist, dass einem keine grauen Haare wachsen." Arne Schäffler
"Wir wohnen nun seit zwei Monaten in unserer neuen MKM - Eigentums - Wohnung, haben uns sehr gut eingelebt und bereuen den Kauf keinesfalls. Die Planung sowie die Betreuung während der Bauzeit ist super gelaufen. Die Arbeit der einzelnen Handwerker ist eine Meisterleistung. Alle Handwerker waren sehr freundlich und sind auf alle unserer Wünsche eingegangen. Sogar die Wand, zur Vergrößerung der Küche und des Essbereichs konnte versetzt werden. Das Gästezimmer wurde etwas kleiner, das erst dadurch die richtige Größe erhielt." Walter Eller
"Ich habe schon zwei Objekte mit MKM gebaut und beides Mal zu 100% zufrieden. Die Bauleitung durch H. Lang und Betreuung durch H. Künast ist perfekt. Vielen Dank!!!" Dr. Sebastian Kirchner
"Die Zusammenarbeit mit MKM war von Anfang an super, jederzeit wieder." K. T.

Interessiert?

Kontaktieren Sie uns jetzt!

Sie haben Fragen oder wünschen eine persönliche Beratung? Wir sind für Sie da - rufen Sie uns gerne an oder senden Sie uns eine e-Mail.

  Mo-Do: 8:30-12 Uhr / 14-16:30 Uhr

09074 - 9222-0

info@mkm-traumhaus.de